Alien Odorz
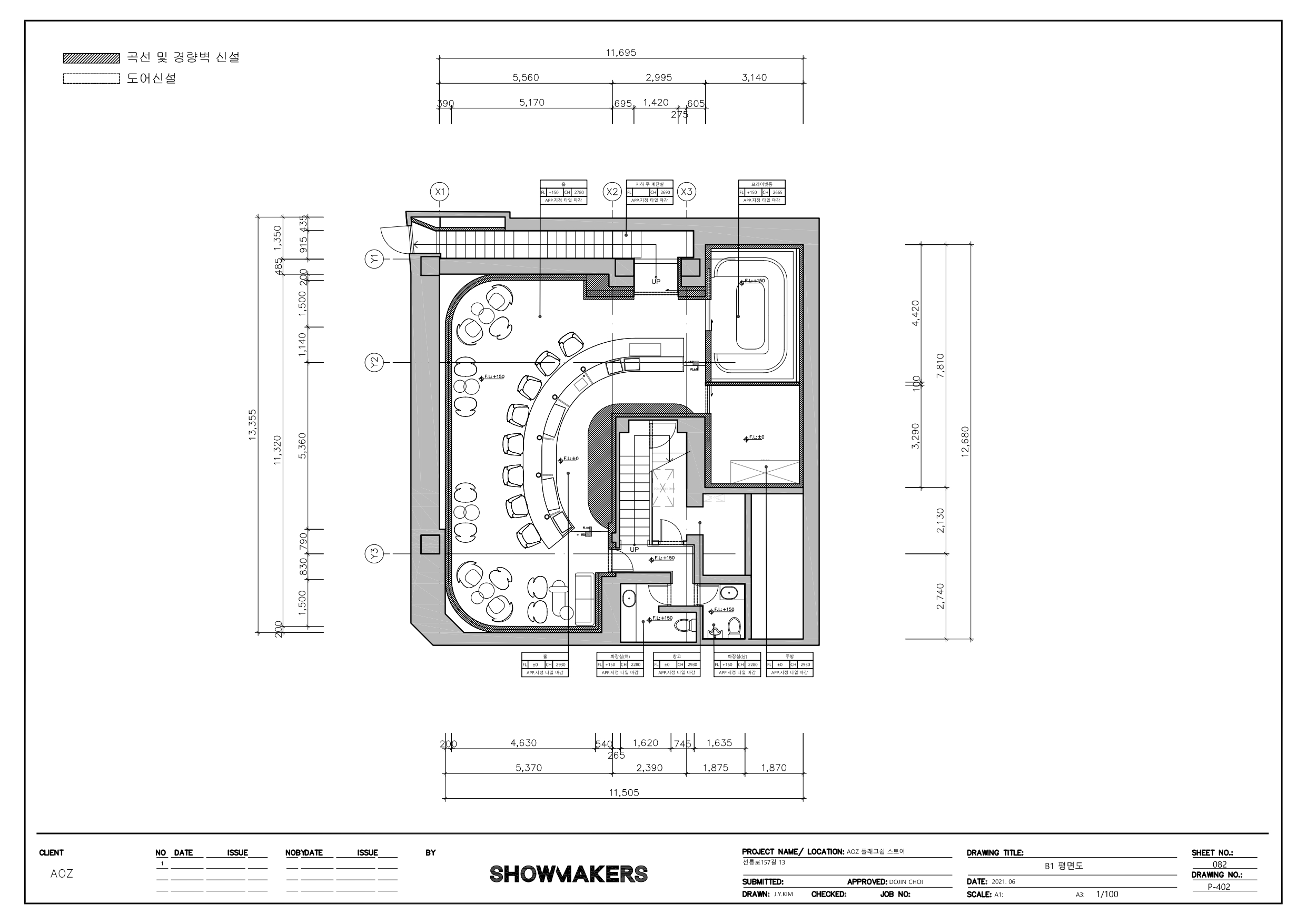
The fragrance brand ‘Alien Odorz (AOZ)’, which explores the essence of fragrance, has launched its first offline space based on stories of exploration of space and the outer world. Each floor has a different identity. First floor is the portal that leads to the mysterious dimention. Second floor is a space where you can savor the incense along the space orbit pattern on the floor. Third floor is a space where sales and experiments takes place. The basement consists of an environment where you can enjoy cocktail menus and bartender’s performance more immersively.
Credit: Showmakers
Project Manager : Jinyoon Kim
Design : Seokyung Jeong, Myungshin Kim, Seongbong Jang
Involvement : Dierection, Design ,Construction
Design Surface : B1-3F 303㎡
The fragrance brand ‘Alien Odorz (AOZ)’, which explores the essence of fragrance, has launched its first offline space based on stories of exploration of space and the outer world. Each floor has a different identity. First floor is the portal that leads to the mysterious dimention. Second floor is a space where you can savor the incense along the space orbit pattern on the floor. Third floor is a space where sales and experiments takes place. The basement consists of an environment where you can enjoy cocktail menus and bartender’s performance more immersively.
Credit: Showmakers
Project Manager : Jinyoon Kim
Design : Seokyung Jeong, Myungshin Kim, Seongbong Jang
Involvement : Dierection, Design ,Construction
Design Surface : B1-3F 303㎡
Mar 2020
![]()
![]()
![]()
![]()
![]()
![]()
![]()




















